About
CAD
Contact
Search
Products
Projects
Materials
Applications
Restorations
Specifications
About
Materials
Products
Projects
Applications
Specifications
Contact
CAD Categories
Balusters
Balustrade
Carved Details
Ceilings
Chimney Caps
Columns
Coping
Corbels
Cornice
Cupolas
Domes
Door Surrounds
Entryways
Finials
Fireplaces
Fountain Rings
Fountains
Installation
Jali
Keystones
Medallions
Molding
Niches
Panels
Piers
Planters
Sconces
Sculpture
Signs
Spires
Wall Caps
Window Surrounds
Door Surrounds
Thumbnail(click to enlarge)
Filename
Description
Material
Height
Diam
Download DWG
Download PDF
Download RFA
MR_SURROUND
×
MR_SURROUND
MTR.-.-.M.1.R0
×
MTR.-.-.M.1.R0
MTR.-.-.S.5.R1
×
MTR.-.-.S.5.R1
ROOF_ADDITION2
×
ROOF_ADDITION2
TMB._._.S.4
×
TMB._._.S.4
TMB._._.S.5
×
TMB._._.S.5
TMB.7.7.F
×
TMB.7.7.F
W4B_D3B_SP
×
W4B_D3B_SP
WR_DS1
×
WR_DS1
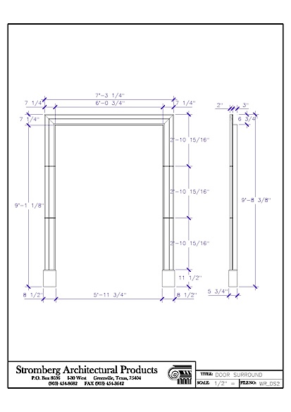
WR_DS2
×
WR_DS2
«
1
2
3
4
5
»